Модуль «Гармония»
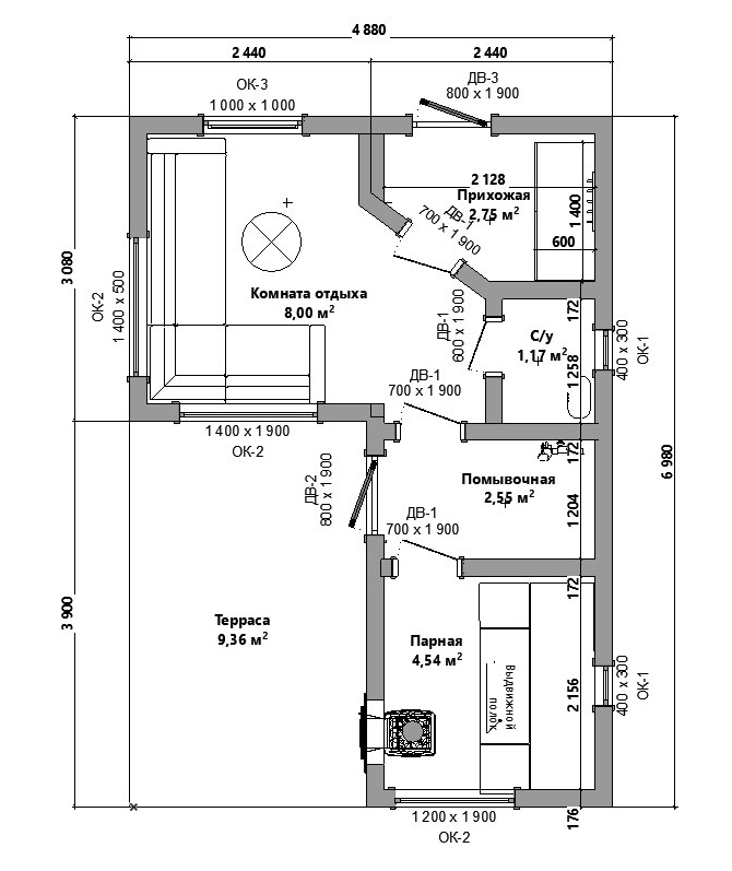
Современная модульная баня с панорамными окнами и уютной открытой террасой станет стильным акцентом вашего участка. Внутри предусмотрены прихожая, санузел, просторная помывочная, комфортная парная и большая комната отдыха.
Мы изготавливаем бани и дома по индивидуальным проектам любой планировки.
Все модули и терраса собираются на производстве, доставляются в готовом виде и устанавливаются на участке всего за несколько часов.




Площадь 35 м²
Этажность 1 этаж
Размер каркаса [6,9×2,4]+[3,4×2,4]+ открытая терраса
Срок строительства 30 дней


Цена на сайте указана за базовую комплектацию
Силовой каркас выполнен из доски хвойных пород дерева, пола 50*150 мм, стен 50*100 мм Утеплитель минеральная вата. Толщина утепления пола, потолка и стен 100/150 мм. Пароизоляция парной фольга на крафт бумаге с проклейкой фольгированным скотчем.
Наружная отделка имитация бруса вертикально/ горизонтально, по согласованию. Кровля профнастил с-21 или фальцевая кровля.
Бани комплектуются Печью Искандер ЗК 18 (П2) Ураган (Технолит)

