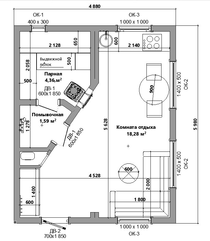
Модуль «Сатори 2»
Наша топовая модель Сатори 2 представлена в формате из двух модулей. В её составе — парная, душевая и просторная комната отдыха, где при желании можно обустроить кухонный гарнитур, обеденную зону, спальные места и прихожую.
Планировку легко адаптировать под индивидуальные запросы.
Модули производятся на заводе, доставляются уже в готовом виде и устанавливаются на участке всего за несколько часов.




Площадь 30 м²
Этажность 1 этаж
Размер каркаса [5,9×2,4]x2 м
Срок строительства 30 дней


Цена на сайте указана за базовую комплектацию
Силовой каркас выполнен из доски хвойных пород дерева, пола 50*150 мм, стен 50*100 мм Утеплитель минеральная вата. Толщина утепления пола, потолка и стен 100/150 мм. Пароизоляция парной фольга на крафт бумаге с проклейкой фольгированным скотчем.
Наружная отделка имитация бруса вертикально/ горизонтально, по согласованию. Кровля профнастил с-21 или фальцевая кровля.
Бани комплектуются Печью Искандер ЗК 18 (П2) Ураган (Технолит)

