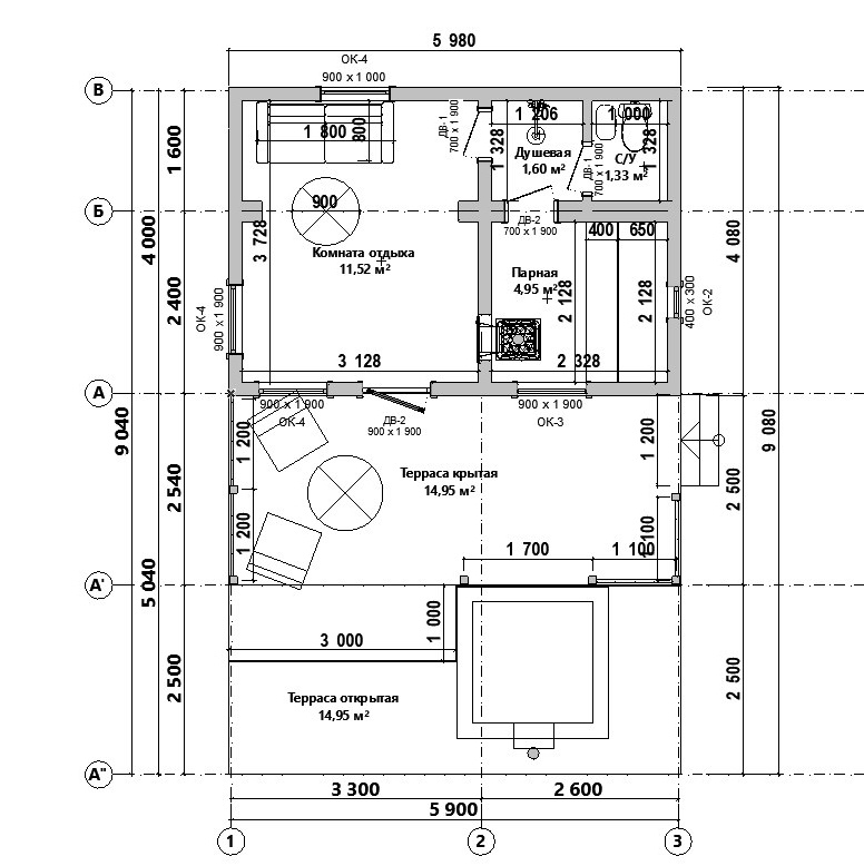
Модуль «Гармония Премиум»
Популярная баня Гармония Премиум теперь доступна в модульном формате. Вам больше не придётся переживать из-за стройки на участке — баню доставят в готовых модулях и соберут всего за несколько часов!
Проект может быть выполнен в разных вариантах: с крытой или открытой террасой, с обшивкой горизонтальными рейками или в виде стильной вертикальной перголы.
Терраса также может поставляться уже в готовом виде. Планировку и размеры окон можно адаптировать под ваши индивидуальные пожелания.




Площадь 24 м²
Этажность 1 этаж
Размер каркаса [5,9×2,4]+[5,9×1,6] м
Срок строительства 30 дней


Цена на сайте указана за базовую комплектацию
Силовой каркас выполнен из доски хвойных пород дерева, пола 50*150 мм, стен 50*100 мм Утеплитель минеральная вата. Толщина утепления пола, потолка и стен 100/150 мм. Пароизоляция парной фольга на крафт бумаге с проклейкой фольгированным скотчем.
Наружная отделка имитация бруса вертикально/ горизонтально, по согласованию. Кровля профнастил с-21 или фальцевая кровля.
Бани комплектуются Печью Искандер ЗК 18 (П2) Ураган (Технолит)

