Модуль «Слобода»
Лидер продаж! Наша основная модель Слобода состоит из двух модулей, один из которых — уютная крытая терраса.
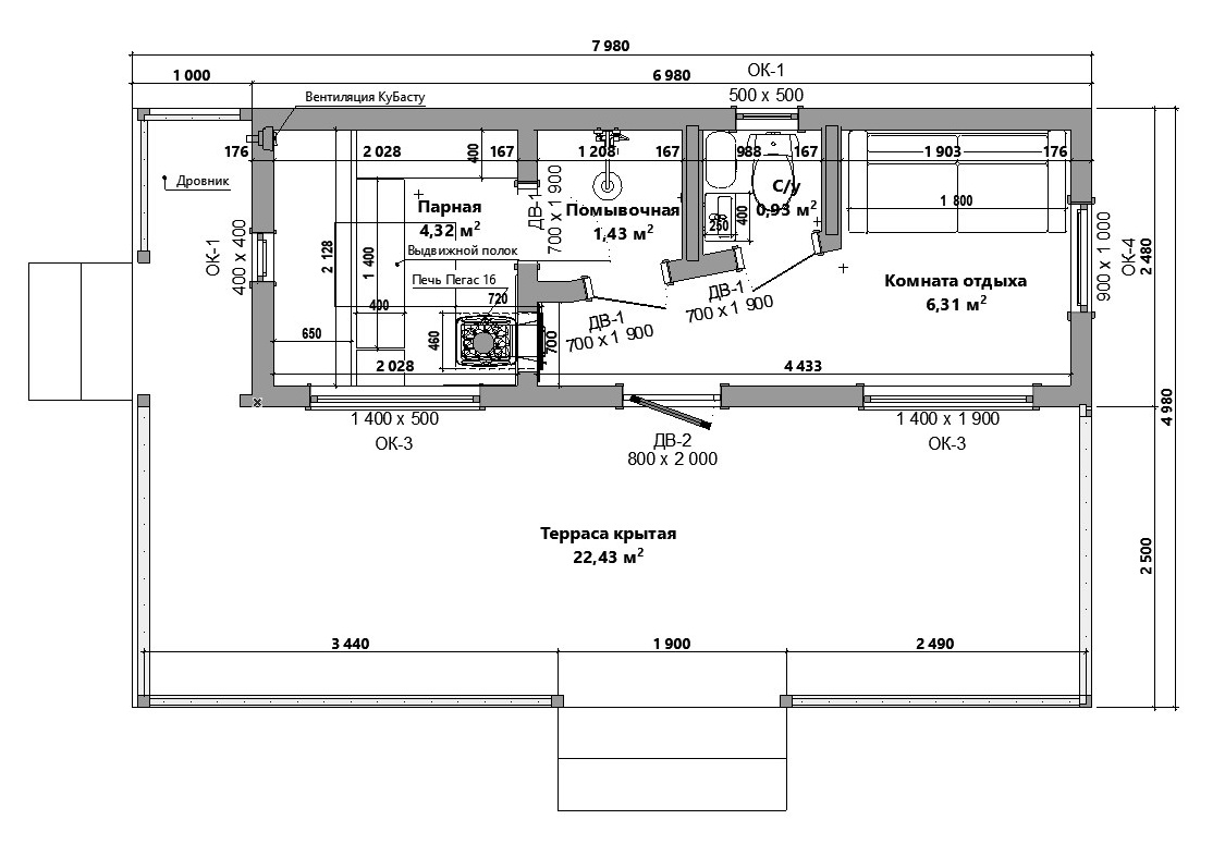
В комплектацию входят парная, душевая, санузел и просторная комната для отдыха. На террасе предусмотрено место для хранения дров под крышей.
Планировку можно адаптировать под индивидуальные запросы. Модули изготавливаются на заводе, доставляются в готовом виде и устанавливаются на вашем участке всего за несколько часов.




Площадь 40 м²
Этажность 1 этаж
Размер каркаса [7,9×2,4]x2 м
Срок строительства 30 дней


Цена на сайте указана за базовую комплектацию
Силовой каркас выполнен из доски хвойных пород дерева, пола 50*150 мм, стен 50*100 мм Утеплитель минеральная вата. Толщина утепления пола, потолка и стен 100/150 мм. Пароизоляция парной фольга на крафт бумаге с проклейкой фольгированным скотчем.
Наружная отделка имитация бруса вертикально/ горизонтально, по согласованию. Кровля профнастил с-21 или фальцевая кровля.
Бани комплектуются Печью Искандер ЗК 18 (П2) Ураган (Технолит)

